Compliant
Compliant
Compliant
1 Revision
01/01/1970

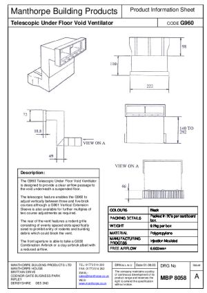
Telescopic Underfloor Vent allows for the following advantages:
• 6,600mm² airflow• Gives ventilation to an underfloor void• Allows between 3-5 course stagger• Additional depth and cavity span are available with extension sleeve
This download includes Revit Components for G960 Telescopic Underfloor Vent by Manthorpe Building Products.
To embed this product into any website simply copy and paste the code below.
This site uses cookies. By continuing to browse this site you are agreeing to our use of cookies. Find out more here.


You must log in to write a comment
Login or Join
bimwarehouse on 31 December 2025
Be the first to write a comment...